湖南乾顺置业发展有限公司
首页
户型欣赏
关于我们
政策中心
联系我们
1
2
首页
>>
户型欣赏
>>
标准厂房平面图
>>
标准厂房2
户型欣赏
标准厂房平面图
详细说明
标准厂房2
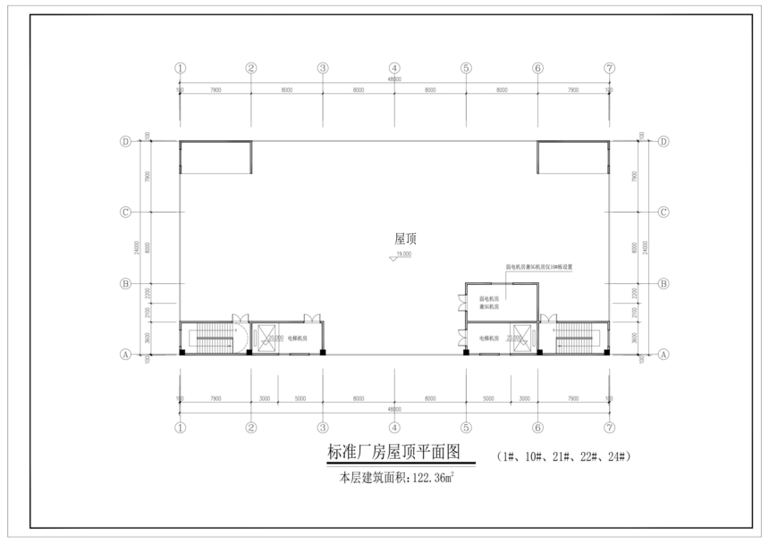
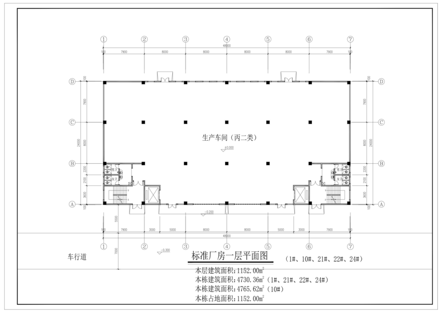
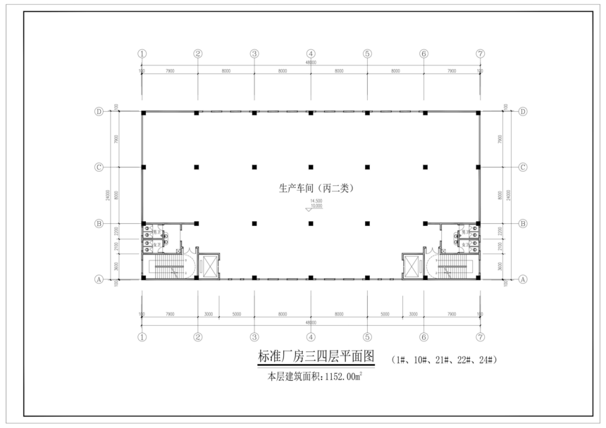
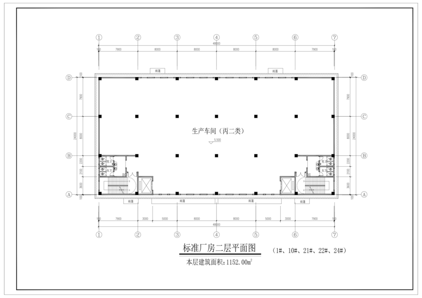
本层建筑面积:1152.00㎡
本栋建筑面积:4730.36㎡
本栋占地面积:1152.00㎡
暂无价格
收藏
商品说明
相关商品
标准厂房7
标准厂房6
标准厂房5
标准厂房1
标准厂房3
标准厂房4
电话直呼
在线留言
×
账号登录
登录
忘记密码
立即注册
更多登录方式